Luxueus duplexappartement
Ontdek dit luxueus en ruim ingericht duplexappartement met aangename, lichtrijke leefruimtes en een hoogwaardige afwerking. U geniet van drie slaapkamers, twee badkamers en een praktische kelderberging. Daarnaast beschikt u over twee terrassen waar het aangenaam vertoeven is.
U woont hier op wandelafstand van de Grote markt, winkels, horeca en diensten. Alles wat u nodig heeft, ligt binnen handbereik. Ook scholen, openbaar vervoer en ontspanning zijn vlot bereikbaar. Dankzij de centrale ligging combineert u stedelijk comfort met een aangename leefomgeving.
Voldoende parkeergelegenheden in de nabije omgeving, o.a. de ondergrondse parkeergarage 'Kloosterbempden'.
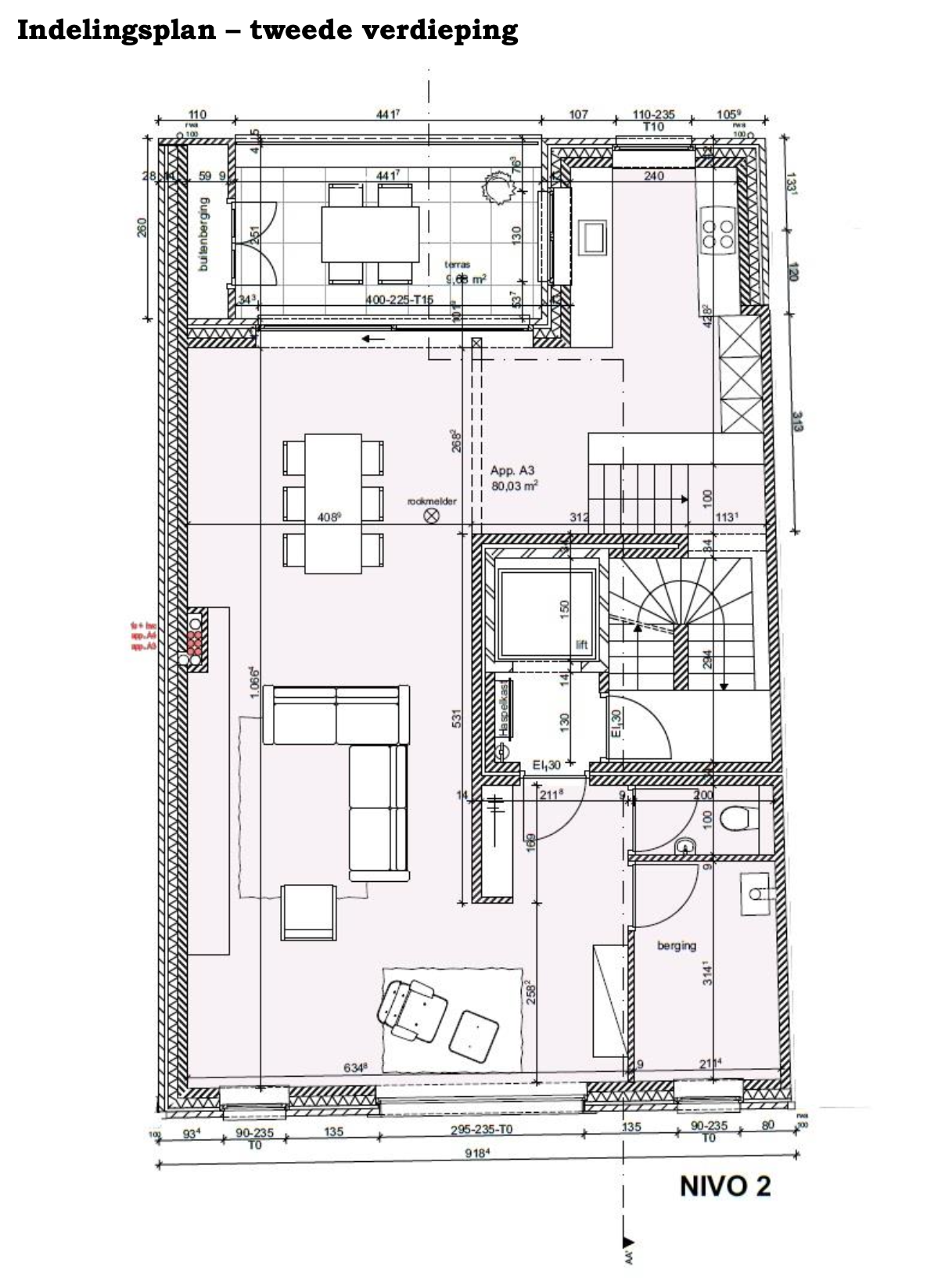
=> Tweede verdieping
- Via de gemeenschappelijke inkomhal op het gelijkvloers kan u met de lift of de trap deze verdieping bereiken
- U komt binnen in de ruime inkomhal met gastentoilet
- Grote, open leefruimte met parketvloer
- Er is ook vloerverwarming aanwezig op elke verdieping
- Veel natuurlijk lichtinval door de grote raampartijen
- Gezellige eetruimte met zicht op het terras
- De keuken is volledig ingericht en voorzien van de nodige luxe
- Het terras is toegankelijk via het schuifraam in de leefruimte
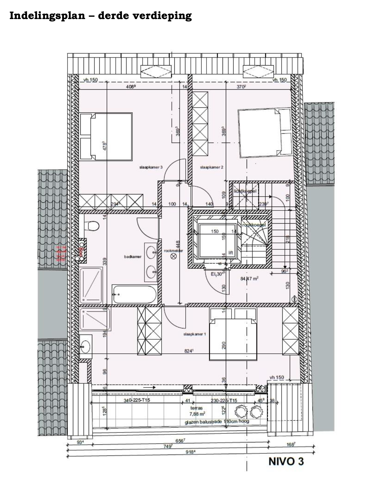
=> Derde verdieping
- Met de privélift komt u op de overloop op de derde verdieping
- Ruime slaapkamer aan de voorzijde van het gebouw met toegang tot het tweede terras van 7,88m²
- Badkamer met inloopdouche en enkele wastafel in badkamermeubel
- Gezellig terras met zicht op de stad
- Twee ruime slaapkamers waarvan één momenteel gebruikt wordt als dressing
- Betegelde badkamer met inloopdouche, toilet, ligbad en dubbele wastafel in badkamermeubel
=> Indeling
- Gelijkvloers: gemeenschappelijke inkomhal
- Tweede verdieping: inkomhal, apart toilet, berging/wasplaats, woonkamer met eetruimte, keuken, terras (9,65m²)
- Derde verdieping: overloop, drie slaapkamers waarvan één momenteel ingericht als dressing, twee badkamers, tweede terras (7,88m²)
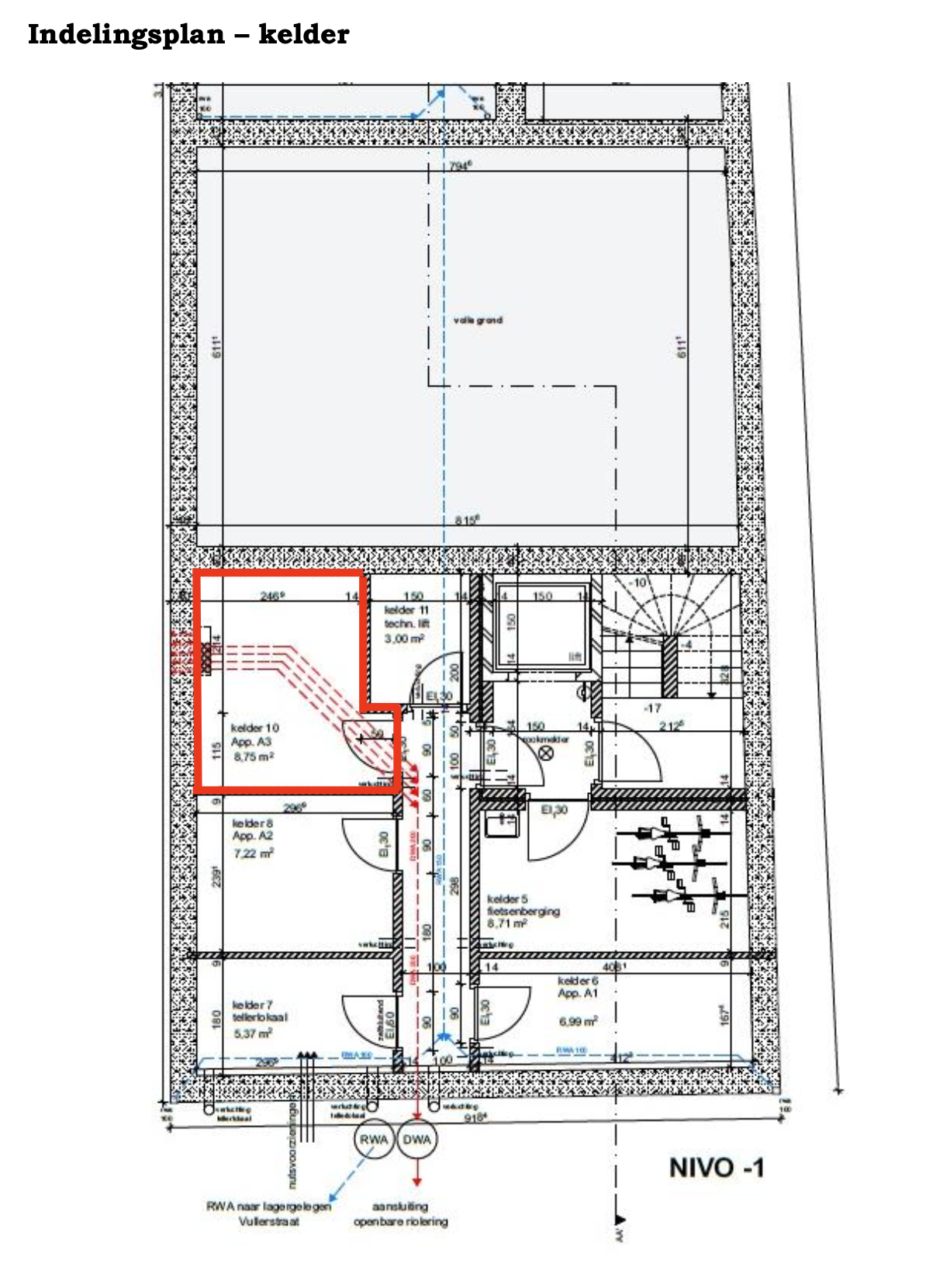
- Kelder: private kelderberging (8,75m²)
Interesse? Of wenst u meer informatie over dit pand?
Tel: 089 - 56 57 06
Plan een bezoekDeel dit pand
-
Algemeen
-
Type
Appartement
- Prijs € 440.000
- Adres Marktstraat 3 B 21, 3680 Maaseik
-
Bouwjaar
2019
- Bewoonbare opp. 165 m2
-
Type
-
Indeling
-
Slaapkamers
3
-
Badkamers
2
-
Toiletten
2
- Keuken Ja
- Terras Ja
- Woonkamer Ja
Comfort-
Raamwerk
PVC
-
Beglazingstype
Hoogrendementsglas
-
Verwarming
Centrale verwarmingAardgas
-
Boiler
Gas
- Videofoon Ja
Wettelijke gegevens- Niet geïndexeerd K.I. € 1.210
-
Kadastrale benaming
Maaseik, eerste afdeling
-
Kadastrale nummer
576C
- EPC index 67 kWh/h/(m2jaar)
- EPC klasse A
- EPC geldig tot 2031-01-21
- Renovatieplicht Nee
- Voorkooprecht Nee
- Dagvaarding & herstelvordering Geen rechterlijke herstelmaatregel of bestuurlijke maatregel opgelegd
- Overstromingsgevoelig Geen overstromingsgevoelig gebied
- Overstromingsgebied Geen afgebakende zones
- Overstromingskans perceel (P-score) A
- Overstromingskans gebouw (P-score) A
- Erfgoed Geen beschermd erfgoed
DownloadenRaming afbetaling -
Slaapkamers
