=> Het project
Residentie Vrietselrijk omvat 14 stijlvolle appartementen, ontworpen met veel aandacht voor ruimte, licht en een verfijnde afwerking. Ondergronds zijn er 17 parkeerplaatsen en 14 private bergingen, zodat praktisch gemak en wooncomfort perfect samengaan.
De groene en ... rustige omgeving zorgt voor extra wooncomfort en privacy. De gelijkvloerse appartementen beschikken over een privétuin en de appartementen op de verdiepingen hebben ruime terrassen met een open zicht op de natuur.
=> De ligging
Dankzij de centrale ligging bereik je vlot Maasmechelen, Genk en Maaseik, terwijl natuurgebieden, winkels, scholen en Maasmechelen Village zich vlakbij bevinden.
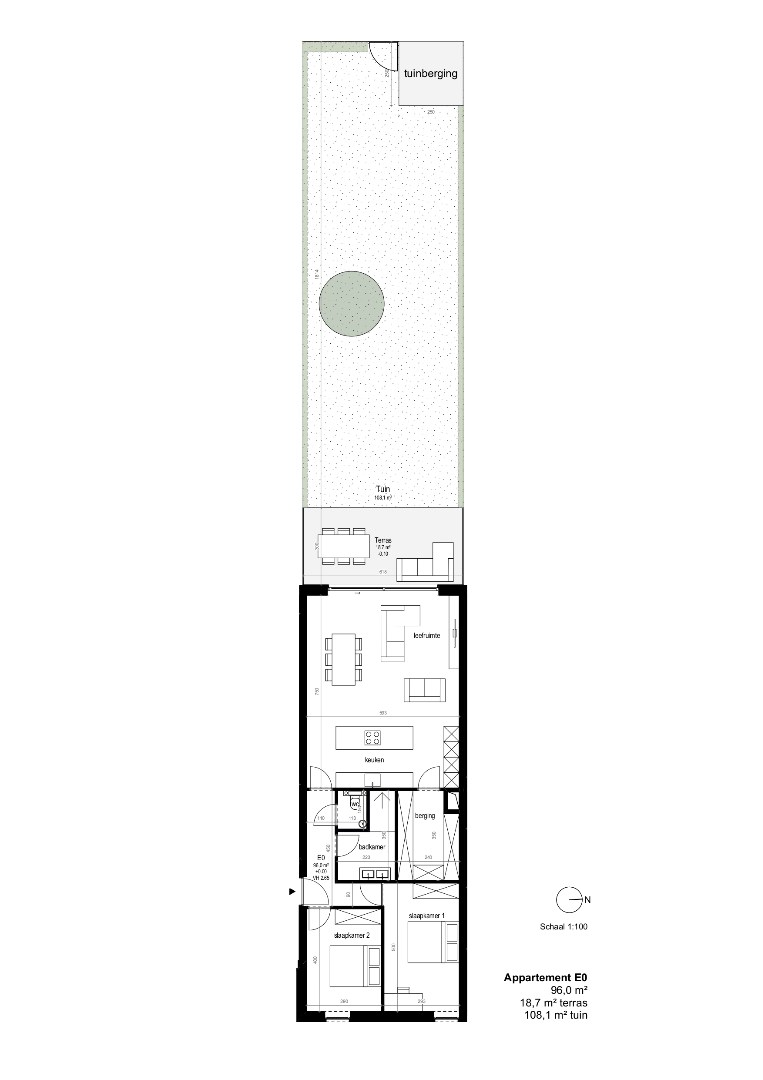
=> Appartement E0 (96m²)
- Inkomhal
- Apart toilet
- Leefruimte
- Keuken
- Berging
- Twee slaapkamers
- Badkamer
- Tuin (108,10m²) + terras (18,7m²)
=> Bijzonderheden
Voor een aangenaam binnenklimaat zijn de appartementen uitgerust met warmtepompen en vloerverwarming. Met de lift bereik je comfortabel de verdieping van jouw appartement.
Een extra troef is dat je de afwerking zelf mee kan bepalen. Keuken, badkamer, vloeren en binnendeuren kies je volgens de voorziene budgetten in het lastenboek. Zo richt je jouw appartement volledig in naar jouw eigen smaak.
Interesse? Voor meer info of een afspraak kan je contact opnemen met ons kantoor
lees meer lees minder
Residentie Vrietselrijk omvat 14 stijlvolle appartementen, ontworpen met veel aandacht voor ruimte, licht en een verfijnde afwerking. Ondergronds zijn er 17 parkeerplaatsen en 14 private bergingen, zodat praktisch gemak en wooncomfort perfect samengaan.
De groene en ... rustige omgeving zorgt voor extra wooncomfort en privacy. De gelijkvloerse appartementen beschikken over een privétuin en de appartementen op de verdiepingen hebben ruime terrassen met een open zicht op de natuur.
=> De ligging
Dankzij de centrale ligging bereik je vlot Maasmechelen, Genk en Maaseik, terwijl natuurgebieden, winkels, scholen en Maasmechelen Village zich vlakbij bevinden.
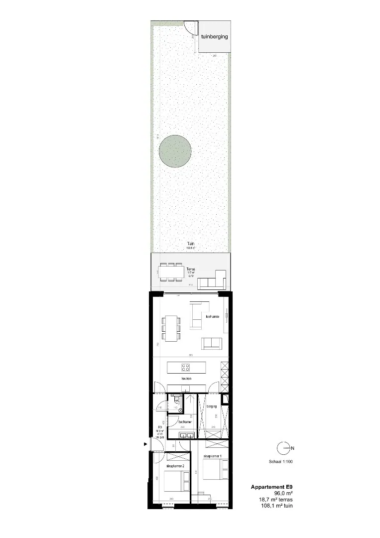
=> Appartement E0 (96m²)
- Inkomhal
- Apart toilet
- Leefruimte
- Keuken
- Berging
- Twee slaapkamers
- Badkamer
- Tuin (108,10m²) + terras (18,7m²)
=> Bijzonderheden
Voor een aangenaam binnenklimaat zijn de appartementen uitgerust met warmtepompen en vloerverwarming. Met de lift bereik je comfortabel de verdieping van jouw appartement.
Een extra troef is dat je de afwerking zelf mee kan bepalen. Keuken, badkamer, vloeren en binnendeuren kies je volgens de voorziene budgetten in het lastenboek. Zo richt je jouw appartement volledig in naar jouw eigen smaak.
Interesse? Voor meer info of een afspraak kan je contact opnemen met ons kantoor
lees meer lees minder
Algemeen
| Adres: | Rijksweg 114-B/005 Lanklaar |
| Referentie: | APP960 |
| Vraagprijs: | € 301.400 |
| Type: | Appartement |
| Beschikbaar vanaf: | Bij oplevering |
| Bewoonbare opp.: | 96 m² |
| Type constructie: | Traditioneel |
| Bouwjaar: | 2026 |
Indeling
| Slaapkamers: | 2 |
| Badkamers: | 1 |
| WC: | 1 |
| Woonkamer: | Ja |
| Keuken: | Ja |
| Berging: | Ja |
| Terras: | 19 m² |
| Tuin: | 108,10 m² |
Comfort
| Raamwerk: | Aluminium |
| Beglazing: | Dubbel |
| Verwarming: | Warmtepomp |
| Verwarmd water: | Warmtepomp |
| Lift: | Ja |
| Internet: | Ja |
Wettelijke gegevens
| EPC E-peil: | 30,00 |
| Stedenbouwkundige vergunning: | Ja |
| Voorkooprecht: | Neen |
| Verkavelingsvergunning van toepassing: | Neen |
| Stedenbouwkundige bestemming: | Woongebied |
| Dagvaarding en herstelvordering: | Geen rechterlijke herstelmaatregel of bestuurlijke maatregel opgelegd |
| Overstromingsgevoelig: | Mogelijk overstromingsgevoelig gebied |
| Overstromingsgebied: | Geen afgebakende zones |
| Overstromingskans perceel (P-score): | |
| Erfgoed: | Geen beschermd erfgoed |
Documenten
Download
Blijf op de hoogte van nieuwe huizen en appartementen
Maak het u makkelijk. Krijg via e-mail nieuwe huizen of appartementen die aan uw budget en wensen voldoen.
Ik wens meer informatie over volgend pand:
Vertel een vriend
Lanklaar
Rijksweg
114 B 005
€ 301 400
Lanklaar
Rijksweg
114 B 005