Nieuwbouwappartement van 97,19m² met één slaapkamer
Maasmechelen
Koninginnelaan
48 A b30
€ 255 000
ACTIE: Extra voordeel bij aankoop van een appartement: vanaf 5% korting op de autostandplaats!
Residentie De Mispelaer ligt in het bruisend hart van Maasmechelen, een gemeente met daarenboven veel bos- en heidegebied. De verschillende in- en uitvalswegen van de gemeente zorgen er voor dat ... de centra van Maastricht, Genk, Hasselt, Maaseik of Aken vlot bereikbaar zijn.
De ruime en lichte appartementen, alle met terras, worden ontsloten via brede galerijen die uitkijken op een binnentuin op het dak van de winkel. De tuin, het bijhorende zonneterras en de aanpalende ontmoetingsruimte zijn alleen toegankelijk voor bewoners en hun bezoekers. Een ideale plek voor een gezellige babbel of een spelletje kaarten of petanque.
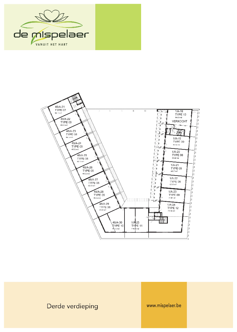
=> Derde verdieping (appartement 3.47)
- Inkomhal
- Leefruimte met keuken
- Berging
- Eén slaapkamer
- Badkamer
- Terras van 40,60m² aan de straatzijde
=> Kelder
- Onder het complex bevindt zich een ondergrondse parkeergarage waar een parkeerplaats en een kelderberging kan aangekocht worden
=> Kenmerken
- Akoestische- en thermische isolatie
- Aluminium ramen met superisolerende beglazing
- Individueel instelbare vloerverwarming
- Koeling (vloerkoeling)
- Ventilatiesysteem Type D
- Lift en videofoon
- Rolstoeltoegankelijk
- Drempelloos terras lees meer lees minder
Residentie De Mispelaer ligt in het bruisend hart van Maasmechelen, een gemeente met daarenboven veel bos- en heidegebied. De verschillende in- en uitvalswegen van de gemeente zorgen er voor dat ... de centra van Maastricht, Genk, Hasselt, Maaseik of Aken vlot bereikbaar zijn.
De ruime en lichte appartementen, alle met terras, worden ontsloten via brede galerijen die uitkijken op een binnentuin op het dak van de winkel. De tuin, het bijhorende zonneterras en de aanpalende ontmoetingsruimte zijn alleen toegankelijk voor bewoners en hun bezoekers. Een ideale plek voor een gezellige babbel of een spelletje kaarten of petanque.
=> Derde verdieping (appartement 3.47)
- Inkomhal
- Leefruimte met keuken
- Berging
- Eén slaapkamer
- Badkamer
- Terras van 40,60m² aan de straatzijde
=> Kelder
- Onder het complex bevindt zich een ondergrondse parkeergarage waar een parkeerplaats en een kelderberging kan aangekocht worden
=> Kenmerken
- Akoestische- en thermische isolatie
- Aluminium ramen met superisolerende beglazing
- Individueel instelbare vloerverwarming
- Koeling (vloerkoeling)
- Ventilatiesysteem Type D
- Lift en videofoon
- Rolstoeltoegankelijk
- Drempelloos terras lees meer lees minder
Algemeen
| Adres: | Koninginnelaan 48-A/b30 Maasmechelen |
| Referentie: | APP0649 |
| Vraagprijs: | € 255.000 |
| Type: | Appartement |
| Beschikbaar vanaf: | Bij oplevering |
| Bewoonbare opp.: | 97 m² |
| Type constructie: | Traditioneel |
Indeling
| Slaapkamers: | 1 |
| Badkamers: | 1 |
| Woonkamer: | Ja |
| Keuken: | Ja |
| Terras: | 27 m² |
Comfort
| Raamwerk: | Aluminium |
| Beglazing: | Superisolerend |
| Verwarming: | Vloerverw. geheel |
Wettelijke gegevens
| Overstromingsgevoelig: | Niet meegedeeld |
| Overstromingsgebied: | Niet meegedeeld |
| Erfgoed: | Niet meegedeeld |
Blijf op de hoogte van nieuwe huizen en appartementen
Maak het u makkelijk. Krijg via e-mail nieuwe huizen of appartementen die aan uw budget en wensen voldoen.
Ik wens meer informatie over volgend pand:
Vertel een vriend
Maasmechelen
Koninginnelaan
48 A b30
€ 255 000
Maasmechelen
Koninginnelaan
48 A b30