=> Ligging
Deze drie nieuwbouwwoningen zijn rustig gelegen in het groene Achel. Nabij het centrum van winkels, scholen en horeca. Omringd door natuur en fiets- en wandelroutes.
=> Het project
Het project omvat drie woningen.
De woningen worden verkocht onder de opschortende ... voorwaarde van het bekomen van een stedenbouwkundige vergunning.
=> Indeling
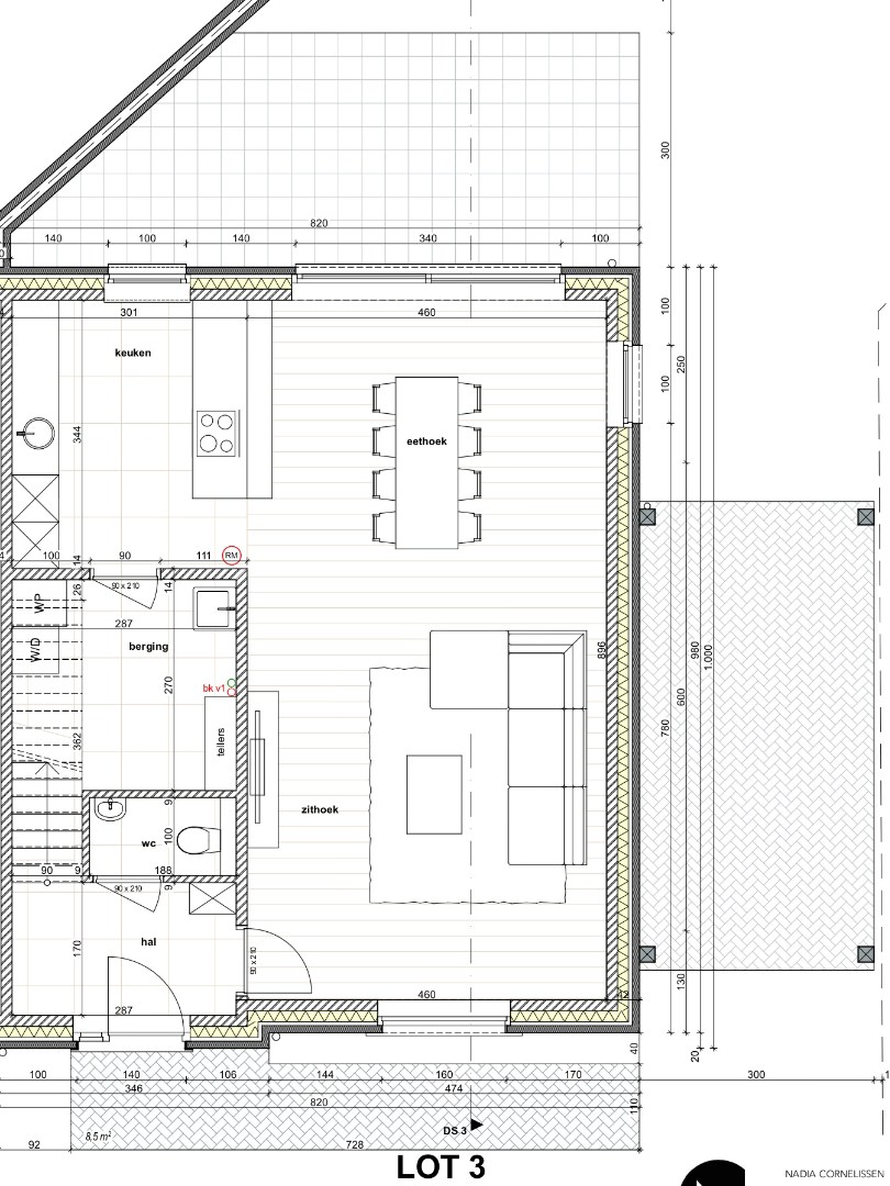
-- Gelijkvloers:
- Inkomhal met apart gastentoilet
- Leefruimte
- Keuken
- Berging
-- Verdieping
- Overlop
- Drie slaapkamers
- Apart toilet
- Badkamer
-- Zolder
- 2 zolderruimtes
- Berging
- Technische ruimte
=> Afwerking
De woningen kunnen casco, casco plus of volledig afgewerkt conform het lastenboek gekocht worden.
De geadverteerde prijs op de website is casco.
Meer informatie over deze afwerkingen via ons kantoor te verkrijgen. lees meer lees minder
Deze drie nieuwbouwwoningen zijn rustig gelegen in het groene Achel. Nabij het centrum van winkels, scholen en horeca. Omringd door natuur en fiets- en wandelroutes.
=> Het project
Het project omvat drie woningen.
De woningen worden verkocht onder de opschortende ... voorwaarde van het bekomen van een stedenbouwkundige vergunning.
=> Indeling
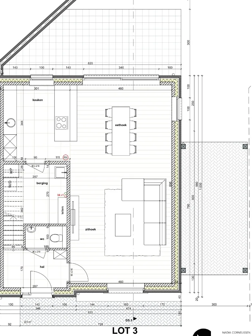
-- Gelijkvloers:
- Inkomhal met apart gastentoilet
- Leefruimte
- Keuken
- Berging
-- Verdieping
- Overlop
- Drie slaapkamers
- Apart toilet
- Badkamer
-- Zolder
- 2 zolderruimtes
- Berging
- Technische ruimte
=> Afwerking
De woningen kunnen casco, casco plus of volledig afgewerkt conform het lastenboek gekocht worden.
De geadverteerde prijs op de website is casco.
Meer informatie over deze afwerkingen via ons kantoor te verkrijgen. lees meer lees minder
Algemeen
| Adres: | Eind 17-W/3 Achel |
| Referentie: | WON1772 |
| Vraagprijs: | € 355.500 |
| Type: | Woning |
| Beschikbaar vanaf: | Bij oplevering |
| Perceeloppervlakte: | 543 m² |
| Bewoonbare opp.: | 201 m² |
| Type constructie: | Traditioneel |
| Bouwjaar: | 2026 |
Indeling
| Slaapkamers: | 4 |
| Badkamers: | 1 |
| WC: | 2 |
| Woonkamer: | Ja |
| Keuken: | Ja |
| Tuin: | Ja |
Comfort
| Raamwerk: | PVC |
| Beglazing: | Dubbel |
| Verwarming: | Warmtepomp |
| Verwarmd water: | Warmtepomp |
Wettelijke gegevens
| Kadastrale benaming: | Hamont-Achel |
| Kadastrale Nummers: | 286/E - lot 3 |
| Kadastrale Oppervlakte: | 543 m² |
| Stedenbouwkundige vergunning: | Neen |
| Voorkooprecht: | Neen |
| Verkavelingsvergunning van toepassing: | Ja |
| Stedenbouwkundige bestemming: | Woongebied met landelijk karakter |
| Dagvaarding en herstelvordering: | Geen rechterlijke herstelmaatregel of bestuurlijke maatregel opgelegd |
| Overstromingsgevoelig: | Geen overstromingsgevoelig gebied |
| Overstromingsgebied: | Geen afgebakende zones |
| Overstromingskans perceel (P-score): | C |
| Erfgoed: | Geen beschermd erfgoed |
Documenten
Download
Blijf op de hoogte van nieuwe huizen en appartementen
Maak het u makkelijk. Krijg via e-mail nieuwe huizen of appartementen die aan uw budget en wensen voldoen.
Ik wens meer informatie over volgend pand:
Vertel een vriend
Achel
Eind
17 W 3
€ 355 500
Achel
Eind
17 W 3